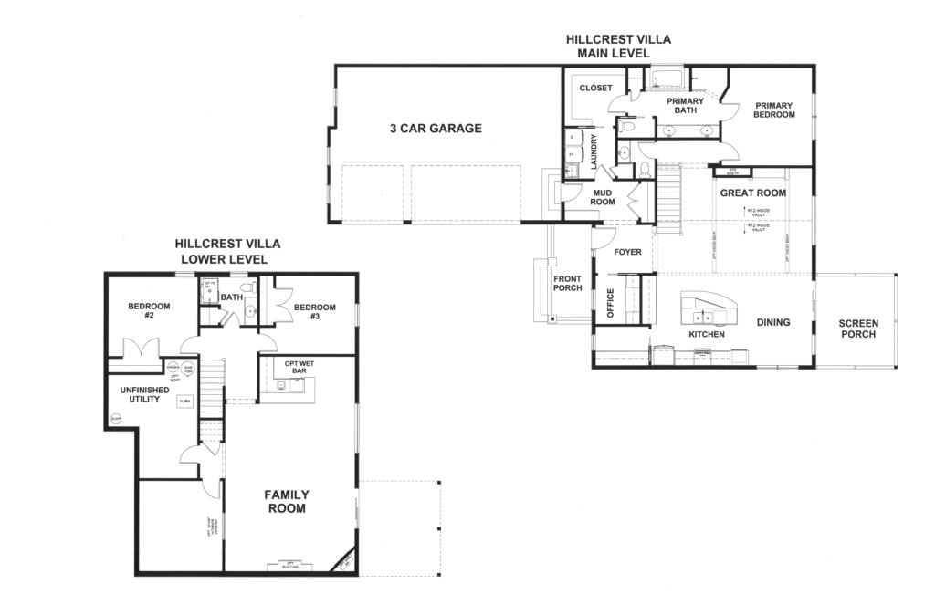
The Hillcrest Villa
3 Bed, 2.5 Bath
The Hillcrest is a three-bedroom home within an association-maintained community. This thoughtfully designed floor plan can be tailored to suit your individual needs and lifestyle.

© 2025 Pratt Homes. All rights reserved.
This floor plan is protected by copyright law. Reproduction, distribution, or use without written permission is strictly prohibited. Plans are for conceptual purposes only and subject to change without notice.


